Air Balloon Road,, Bristol, BS5

Offers in Excess of £325,000
  • 3 Beds
  • 1 Bathroom
  • 1 reception

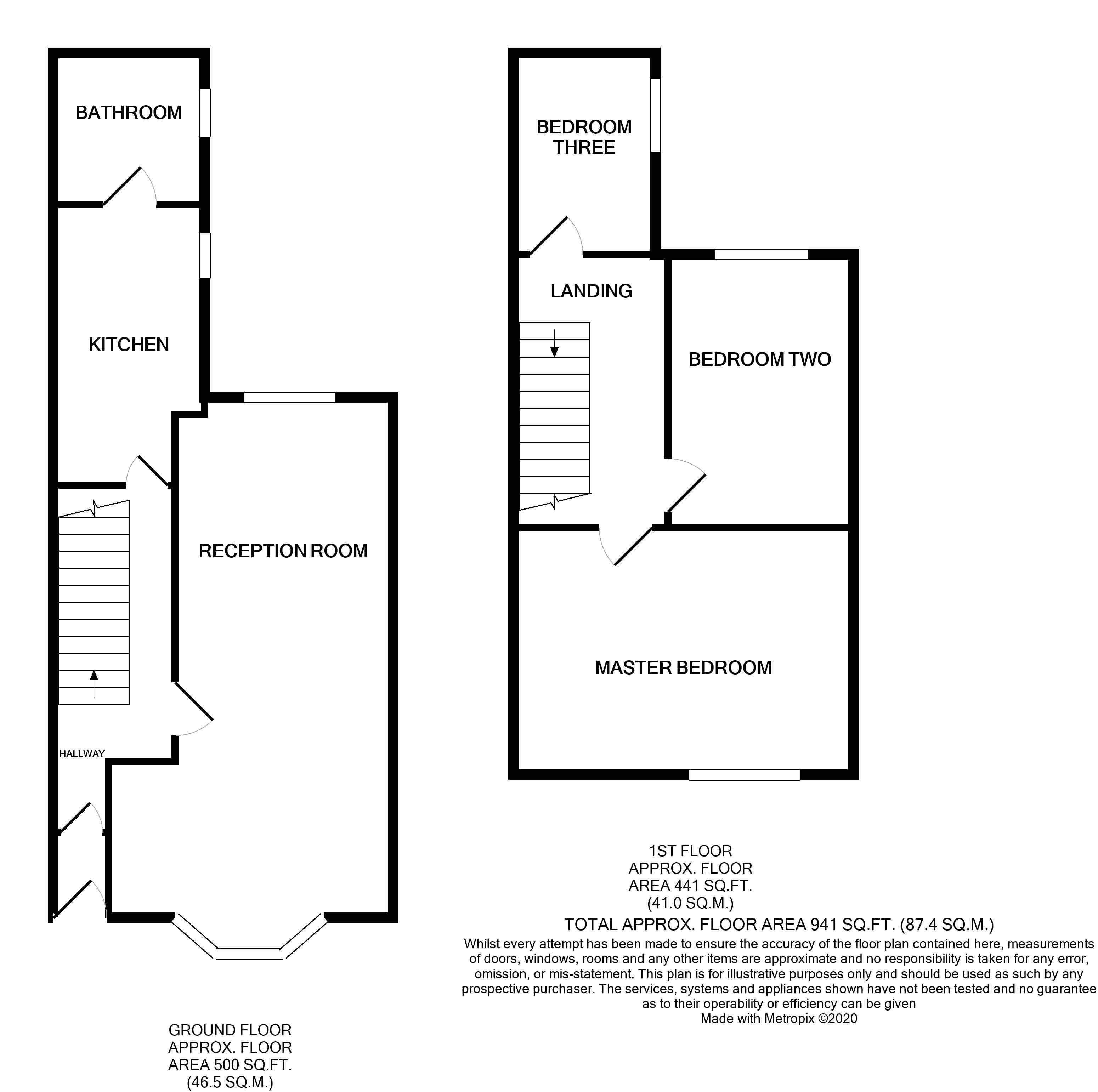
CHAIN FREE From the front door, you step into a welcoming entrance hall that leads into a spacious open-plan lounge and dining area. A charming bay window at the front floods the room with natural light, while patio doors at the rear open directly onto the enclosed garden.

At the end of the hallway is the kitchen, fitted with a range of modern wall and base units, along with integrated appliances. The kitchen also enjoys a pleasant outlook over the rear garden.

Beyond the kitchen is the family bathroom, finished with floor-to-ceiling tiling and a contemporary white three-piece suite, complete with a shower over the bath.

Upstairs, the first floor offers two generously sized double bedrooms along with a comfortable single bedroom, providing flexible accommodation for families, guests, or home working.

Location

Useful calculators

The monthy payment is shown as a guide only.
The actual amount you will have to pay each month could be more or less than this figure.

Arrange Viewing

What time would you prefer we get in touch
Need help? We are here! Let's Chat

Similar Properties

Top