Andrews
£4,260 per month
-
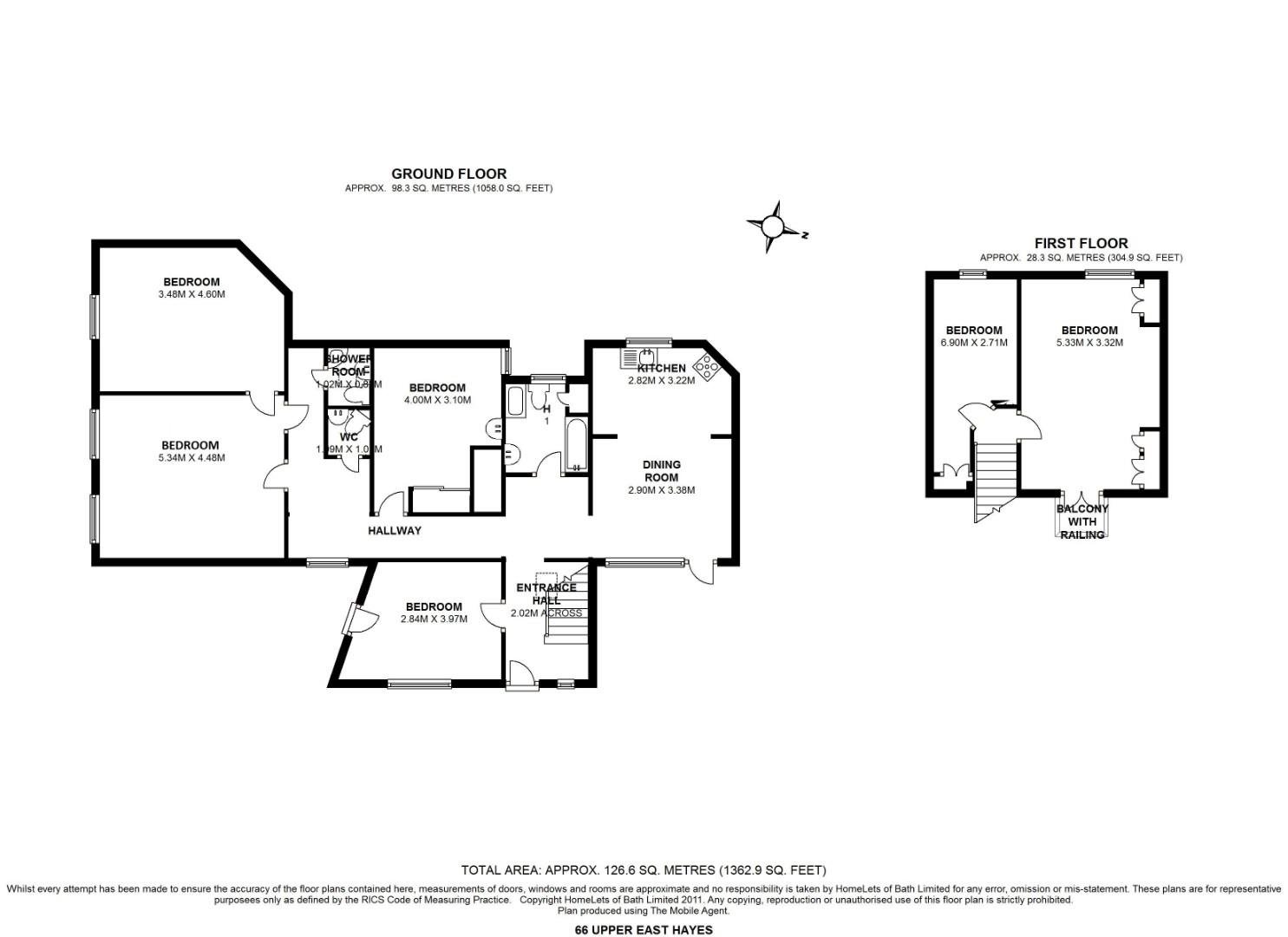
  • 6 Bedrooms
  • 2 Bathrooms
  • 1 Reception

STUDENT 6 BED - FURNISHED - available for the 26/27 academic year

STUDENT 6 BED - FURNISHED - Lght and spacious property situated close to Larkhall village and London Road amenities, with bus links and level walking distance to the city centre. The accommodation provides an open plan reception/kitchen/diner, 6 double bedrooms, bathroom with bath and shower, separate shower room and separate cloakroom. Garden with patio areas maintained by a gardener which is included in the tenancy as well as a garage with bike rack and driveway parking. An 11.5 month contract is AVAILABLE FROM 31.07.26 to 15.07.27 This is a student property. If you proceed with a tenancy, the landlord may rely on Ground 4A of the Renters’ Rights Act to seek possession at the end of a 12-month period.

Andrews
£4,260 per month
-
Andrews
£4,260 per month
-
Andrews
£4,260 per month
-
[ { "featureType": "administrative", "elementType": "all", "stylers": [ { "visibility": "simplified" }, { "gamma": "1.00" } ] }, { "featureType": "administrative.locality", "elementType": "labels", "stylers": [ { "color": "#9b8a97" } ] }, { "featureType": "administrative.neighborhood", "elementType": "labels", "stylers": [ { "color": "#9b8a97" } ] }, { "featureType": "landscape", "elementType": "geometry", "stylers": [ { "visibility": "simplified" }, { "saturation": "-100" }, { "hue": "#ff0000" } ] }, { "featureType": "poi", "elementType": "geometry", "stylers": [ { "visibility": "simplified" }, { "saturation": "-100" }, { "lightness": "80" } ] }, { "featureType": "poi", "elementType": "labels", "stylers": [ { "visibility": "off" } ] }, { "featureType": "poi.attraction", "elementType": "labels", "stylers": [ { "visibility": "off" }, { "color": "#9b8a97" } ] }, { "featureType": "road.highway", "elementType": "geometry", "stylers": [ { "visibility": "simplified" }, { "color": "#dddddd" } ] }, { "featureType": "road.highway", "elementType": "labels", "stylers": [ { "visibility": "off" } ] }, { "featureType": "road.highway.controlled_access", "elementType": "labels", "stylers": [ { "visibility": "off" } ] }, { "featureType": "road.arterial", "elementType": "geometry", "stylers": [ { "visibility": "simplified" }, { "color": "#dddddd" } ] }, { "featureType": "road.arterial", "elementType": "labels", "stylers": [ { "visibility": "off" } ] }, { "featureType": "road.local", "elementType": "geometry", "stylers": [ { "visibility": "simplified" }, { "color": "#eeeeee" } ] }, { "featureType": "road.local", "elementType": "labels.text.fill", "stylers": [ { "color": "#ba5858" }, { "saturation": "-100" } ] }, { "featureType": "transit.line", "elementType": "geometry.fill", "stylers": [ { "color": "#d6909a" } ] }, { "featureType": "transit.line", "elementType": "geometry.stroke", "stylers": [ { "color": "#ff0000" } ] }, { "featureType": "transit.station", "elementType": "all", "stylers": [ { "visibility": "off" } ] }, { "featureType": "transit.station", "elementType": "labels.text.fill", "stylers": [ { "color": "#ba5858" }, { "visibility": "simplified" } ] }, { "featureType": "transit.station", "elementType": "labels.icon", "stylers": [ { "hue": "#ff0036" } ] }, { "featureType": "transit.station.rail", "elementType": "geometry.fill", "stylers": [ { "visibility": "on" }, { "color": "#ff0000" } ] }, { "featureType": "transit.station.rail", "elementType": "geometry.stroke", "stylers": [ { "color": "#df4040" } ] }, { "featureType": "water", "elementType": "geometry", "stylers": [ { "visibility": "simplified" }, { "color": "#dddddd" } ] }, { "featureType": "water", "elementType": "geometry.fill", "stylers": [ { "saturation": "40" }, { "color": "#c3d5e2" } ] }, { "featureType": "water", "elementType": "labels.text.fill", "stylers": [ { "visibility": "on" }, { "color": "#7c7c7c" } ] } ]